Artist Studio

Two years after the completion of our Solis Architecture designed studio, we are very satisfied with the building and the advice and work that Principal Architect Mike Johnson provided to us and his final design which captured our requirements, aspirations and our restrictions perfectly.
— Owner

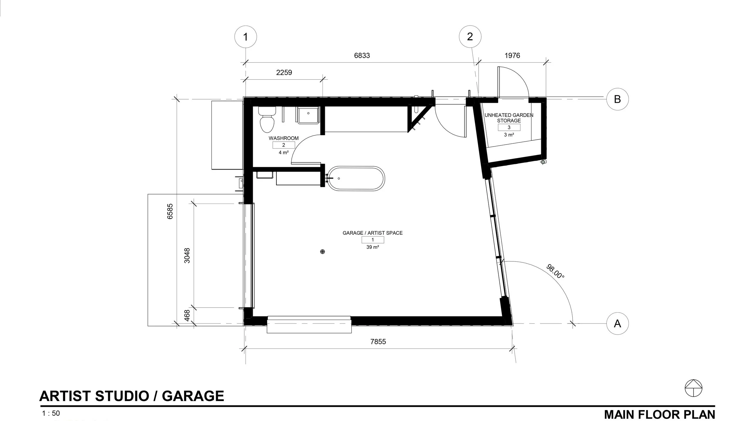
A backyard Artist Studio for a newly retired couple in the community of Alberta Avenue, is an inviting space that maximizes interior height & natural light , creating a space for the client’s art to blossom. Details are evident all the way from the choice of screws to the finishes, highlighting the use of clay paint, celestory lighting, exterior metal cladding in board & batton style, together create a simple and modern look.

The refinished claw foot bathtub, and old cast iron farmhouse sink in the centre of the space used to soak paper for watercolours, brings the old-fashioned touch to this brought modern space. 

Keeping cost low while still optimizing sustainability, the building was made airtight to reduce energy loads.  The walls were furred out on the inside of the studio walls to protect the vapour barrier and provide solid backing for the shop birch plywood walls - an interior feature that warms the space and is a gem in the Alberta Avenue neighbourhood - home to many artists and art festivals.

Previous
Previous

Wildrose Gymnastics

Next
Next

Parksville Beach Public Washroom