34 Stan Wright Drive

Type: Industrial
Date: 2026
Size: 2800 sq.ft.
Budget: $1.8 mil

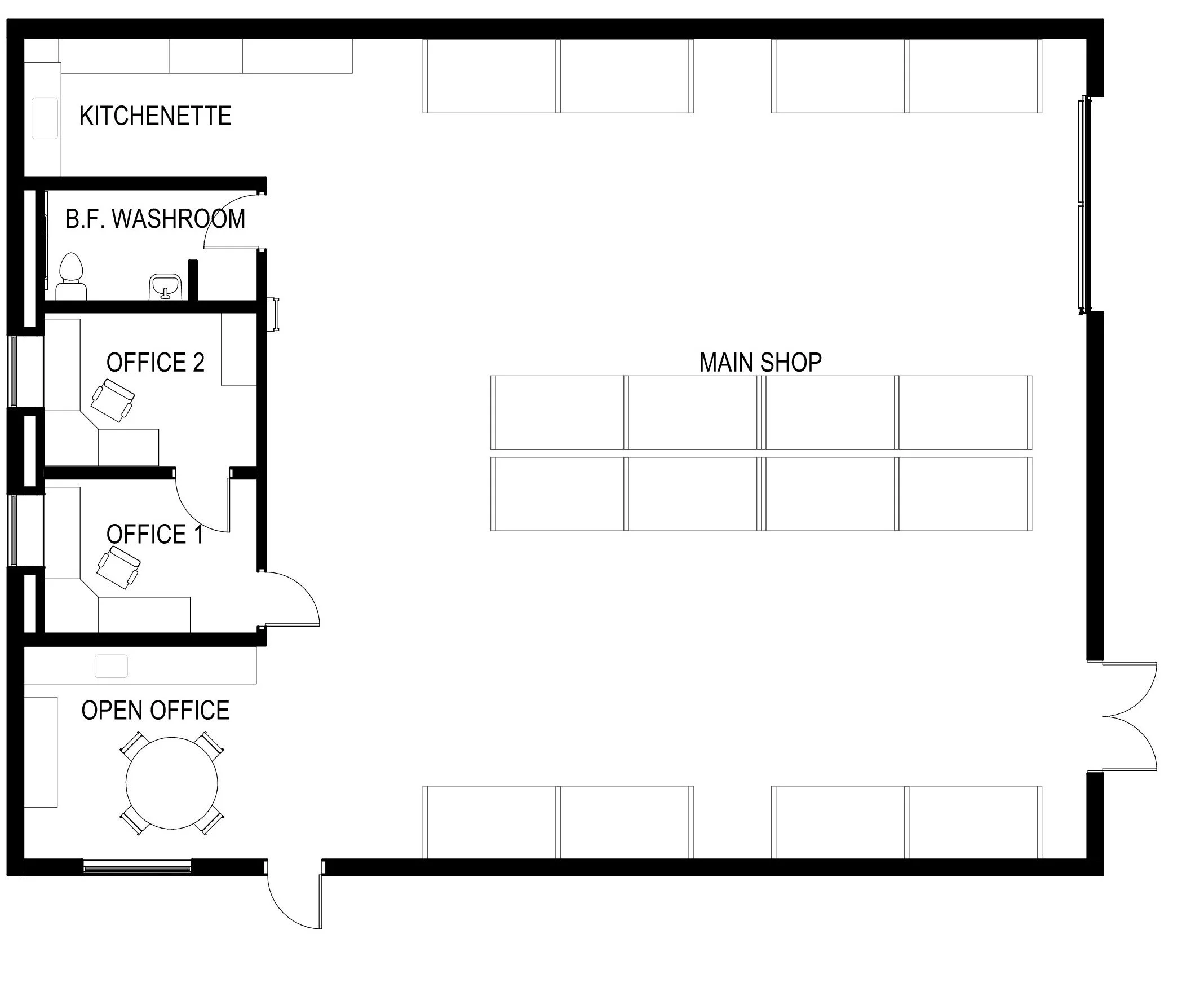
Solis Architecture is working with GCCI construction on a rebuild at 34 Stan Wright Drive in the Industrial District in Jasper.  An area that was heavily impacted by the Jasper Wildfires.  The rebuild consolidates the existing 3 structures on the site into a single building.

Solis Architecture worked with the engineers and pre-eng supplier to develop a building with a unique cantilevered canopy over the loading area.  The canopy design with the stone base met the architectural motif guidelines of Jasper and the updated fire-smart requirements while providing a cost-effective, aesthetically pleasing and functional building.

Industrial buildings can look great too.

Previous
Previous

604 Patricia Street, Jasper, Alberta

Next
Next

Jasper Place CRU, Edmonton, Alberta